
玉蘭苑 | 140方中式設計,呈現莊重大氣的古典風韻!

本案的屋主是一對退休夫妻,喜愛攝影和書法,也愛中國傳統文化,所以風格很快就確定了中式。整體設計偏向傳統、穩重與大氣,符合居住者的心性。
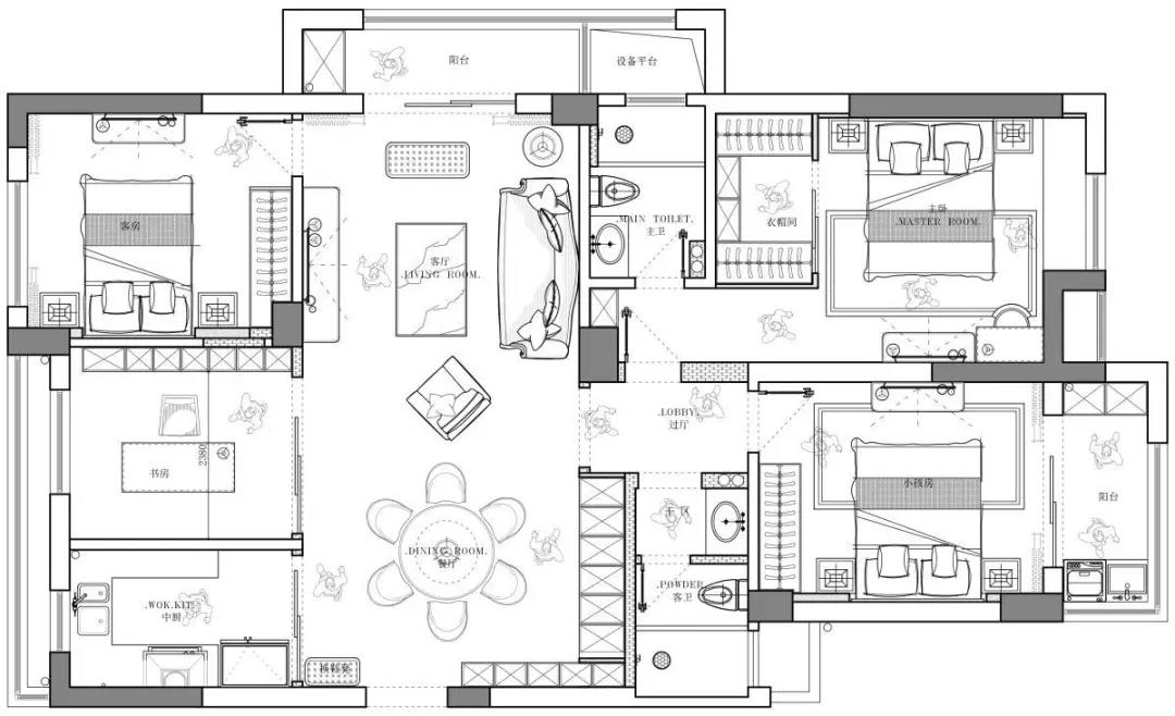
戶 型 圖 設計說明: 敲掉原戶型上多余的墻,使整個空間視野上變得更加開闊,動線更加分明,并將多余的設備平臺包進來提升了空間利用率。 客 廳 客廳提煉了傳統中式風格的經典元素,如方正的家具、吊頂,繪有山水的背景墻,實木的材質等,營造出返璞歸真的生活質感。 沙發米色的布料溫潤而舒適,背景墻、吊頂的線條裝飾顯出嚴謹而有序的空間個性。 客廳望向餐廳與玄關的視角,干凈澄明,視野一覽無余。 餐 廳 餐廳與廚房、書房相鄰,上方設計圓頂,上下呼應,寓意著“團圓”,同時餐邊柜做寬以增加儲藏量。 廚 房 廚房呈U型布局,面積雖不大但功能齊全,深咖的櫥柜低調而莊重。 臥 室 主臥,形式簡約,金色花卉的壁紙在這片濃重的風格中透出清新典雅之色。飄窗改造成收納式,臺下做了幾個抽屜,于細節處現巧思。 ▲小孩房 ▲客臥 小孩房與客臥設計,風格上如出一轍,低飽和的基調搭配穩重實木材質,通過光感與線條營造舒心的就寢環境。 書 房 走進書房,古色古香的氣質鋪面而來,嫩紅、明黃的花朵與綠植交錯點綴,呈現出雅致的一方藝術空間。 衛 生 間 衛生間,墻地統一的深灰瓷磚簡約而美觀,鏡柜的設計增加儲物,提升生活舒適度。 | 地址:玉蘭苑 | 戶型:四室兩廳 | 面積:140㎡ | 風格:中式 | 設計施工:浙江南鴻裝飾













免費
免費申請戶型規劃
專屬設計師免費1對1全程服務
已經有3770人申請
24小時免費咨詢電話
400-8800-618
你家預算
108080元