
江上 | 時光清和,流年似夢

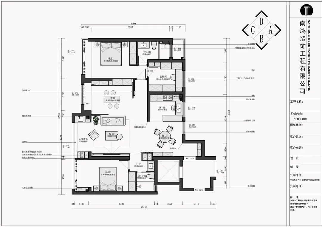
項目信息 / 地址:江上 城市:中國 寧波 戶型:三室兩廳 面積:110㎡ 風格:現代風格 設計施工:浙江南鴻裝飾 本案整體色調以米灰色系為主,地磚選擇了淺色的柔光磚,搭配大面積白色木作和無主燈吊頂,使空間簡潔大氣。軟裝局部用亮色略微點綴,在簡單的線條和結構之間,展開屋主一家平靜而溫馨的日常。 客廳 ∥ 客廳因循極簡主義的設計思路打造,布局開放而靈活,陽臺使用夢幻簾過濾日光,氤氳出時光悠悠的氣息來。空間米白的底色溫暖綿長,配合直爽的線條勾勒,顯得干凈通透,又有足夠的隨性自在。 休閑區 ∥ 沙發背后,雙扇聯動門圍構出家庭休閑區,與客廳既有聯結,又是彼此獨立。半開放式的呈現方式,提供了一處安靜思考的空間,同時也能增強家庭成員間的陪伴感。 餐廚 ∥ 餐廚一體化模式,擴寬了公區域的橫向視覺,并大大提升了空間利用率。統一的米白色系將區域納為高效聯動的整體,并將空間打磨得愈發清透、明凈。 餐桌椅選用的圓潤有趣的造型,為這片餐食區增添了活潑生氣。色味共享,平凡三餐化為詩意日常,清晰了幸福的模樣。 櫥柜區嵌入常用的廚電,流暢的操作動線,讓廚房的整體使用相當舒適。 主臥 ∥ 簡潔的造型和素色的質地,搭建出寧靜而舒適的主臥空間。 主臥設計出步入式的衣帽間,梳妝區對窗而置,恰到好處的光線納入,加上極簡的衣物收納區,映照出高雅的氣質和品味。 兒臥 ∥ 兒童房整體選擇淺藍和粉的色調,搭配公主床和拱形壁龕元素,營造清新而又有活力的童趣氛圍。













免費
免費申請戶型規劃
專屬設計師免費1對1全程服務
已經有3769人申請
24小時免費咨詢電話
400-8800-618
你家預算
108080元