
90后小姐姐的奶油復古家,是多少獨居人的理想哪!
一個人,也要活成一個春天
在一片桃紅之上,提取甜蜜
讓生活破土而出濃濃的詩意

項目信息
PROJECT INFORMATION
地址 | 雅仕苑
城市 | 中國 杭州
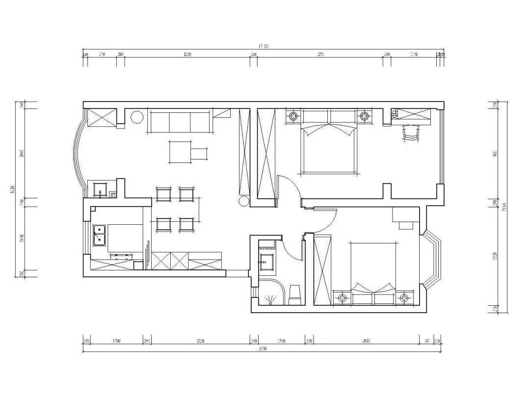
戶型 | 兩室兩廳
面積 | 80㎡
風格 | 奶油復古
設計施工 | 浙江南鴻裝飾

本案的屋主是一位年輕美麗的90后小姐姐,目前單身獨居,父母偶爾來住,想要一個復古多彩的家,以及半開放式效果的廚房。
胡桃木色、黑色、焦糖色、綠色...多彩的顏色既裝飾了空間,也用心表達了女主人那細膩又豐富的情感。設計師充分尊重業主喜好,在空間中灌注了多重復古元素,以柔和的奶油色打底,點綴彩色,將整個家打造得優雅而柔麗,生動又多情。


戶型設計 |

1 | 客廳
Living Room

戶型利用開放式設計將空間的利用率提升到極致,不同的功能區之間彼此滲透、相互聯系,動線不受絲毫束縛,生活是如此自由。



客廳地面鋪純色啞光磚,簡潔易打理,頂部及背景墻均用PU線條勾勒,呈現精致的古典格調。墻部以乳膠漆分色,并裝飾組合掛畫,層次感分明。家具上亦是契合整體風格,做舊的皮藝沙發譜寫時光旋律,茶幾、邊柜結合藤編、長虹玻璃元素,顯得干練又時尚。
電視背景則圍繞收納做設計,實用性超強。綠色植物與花束融入進空間,帶來治愈的自然氣息。



奶油色為底的居室清麗溫柔,設計結合美學考量與居者自身的生活習慣,在細節處不斷納入豐盈的塑寫,使空間既有干凈清爽,又透出浪漫高雅的情致。
2 | 餐廳
Dining Room


餐廚之間以移門相隔,平時把門拉開,采光不受阻礙,明亮通透,而在烹飪時將門一拉,就能隔絕油煙,憑借這樣的設計來實現業主理想中的下廚狀態。
一字型西廚區與餐桌椅并排而立,冰箱嵌入柜體,空間大大拓展了儲物機能,莫蘭迪綠的清新色調也讓餐廚區有了強有力的顏值保障。

餐桌椅的流暢線條帶來潮流感知,也映射出都市佳人詩意的小確幸生活~
3 | 廚房
Kitchen

廚房的色彩與餐廳區保持一致,空間連貫統一。雖面積不大,但因為輕透的配色和明亮的采光,廚房內里也絲毫不顯壓抑。
4 | 臥室
Bedroom


主臥延續了客廳的裝飾手法,姜黃色的床具床品結合兩盞小吊燈頗具復古意味,整排白色衣柜利落地將各類衣物歸納安置。



空間以靜雅的姿態釋放出溫柔和純凈,并依光影造景,為安然入眠烘托出謐靜祥和的氣氛。陽臺置入辦公的功能,弧形結構讓空間的銜接更加柔和流暢。



次臥選用黑色藤編床和床頭柜,搭配上下分色的背景,以及墨綠色的絨質窗簾和法式蕾絲紗簾,將優雅的法式復古氛圍漸次拉滿。
免費
免費申請戶型規劃
專屬設計師免費1對1全程服務
已經有3769人申請
24小時免費咨詢電話
400-8800-618
你家預算
108080元